Capital Steel Plans

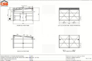
The beauty of our Capital Steel Buildings software is that it enables us to produce the necessary planning or building control plans easily and, most importantly, promptly, with the added bonus of being free of obligation or cost. These will represent your new building in all the detail required to obtain the necessary permissions.
‘Impressions of your new Steel Buildings FREE’
Our ingenious software can show you exactly what your new steel building will look like on completion, and it can be emailed to you. If you don’t like the look of your new Capital Steel Building, let us know, and we will send you a new version to approve.
‘Many Options Available’

Add in the option of the many different steel profiles, and you can appreciate your new steel building in all its glory – a truly 21st-century service from 1st Choice Leisure Buildings (empathising ‘1st Choice’)
All modular steel buildings, workshops, garages, etc., are designed and manufactured to your exact specifications. With a fast turnaround time, you can utilise your new unit or light industrial building sooner than you think.
Contact Us Now’ for a free no obligation quote
Super Fast Quotes For Thess Steel Buildings
We offer the exact costing for all your industrial, agricultural, or domestic projects on the precise structure you require. With our ‘state-of-the-art’ 21st-century software, this is produced for you quickly and efficiently. All our metal garages, outbuildings, stores, farms, barns, light industrial buildings, and commercial buildings come complete with easy-to-read instructions.
‘Easy To Build’
All these steel industrial buildings, farm units, metal garages and light industrial units are delivered complete with detailed, easy-to-read assembly instructions. These give a detailed breakdown in a step-by-step format and contain many detailed drawings. Each set of instructions is unique to each Capital Steel Building
‘Any Size Steel Building Made’
If our standard range of buildings doesn’t meet your needs, we can offer a specialised and innovative design service. We can supply the exact metal garage, steel industrial building, farm unit, or storage shed to meet your needs in many colours and profiles, with doors to your width and height and personal doors for easy access. You can even have a shed or carport attached to these buildings. We will be able to provide you with a firm, detailed quote within hours.